Сдам производственное помещение и офисы площадью 490 м²

ул Мичурина, д. 2А

185 000 руб.

?

$ 1 086

€ 979

378 руб./м²


490 м²

1/1 этажей

Код объекта

117189

Предложение доступно для субагентов, авторизуйтесь

Сдам Производственное помещение и офисы площадью 490 м²

Код объекта: 117189.
Тип объекта: Производственное помещение.
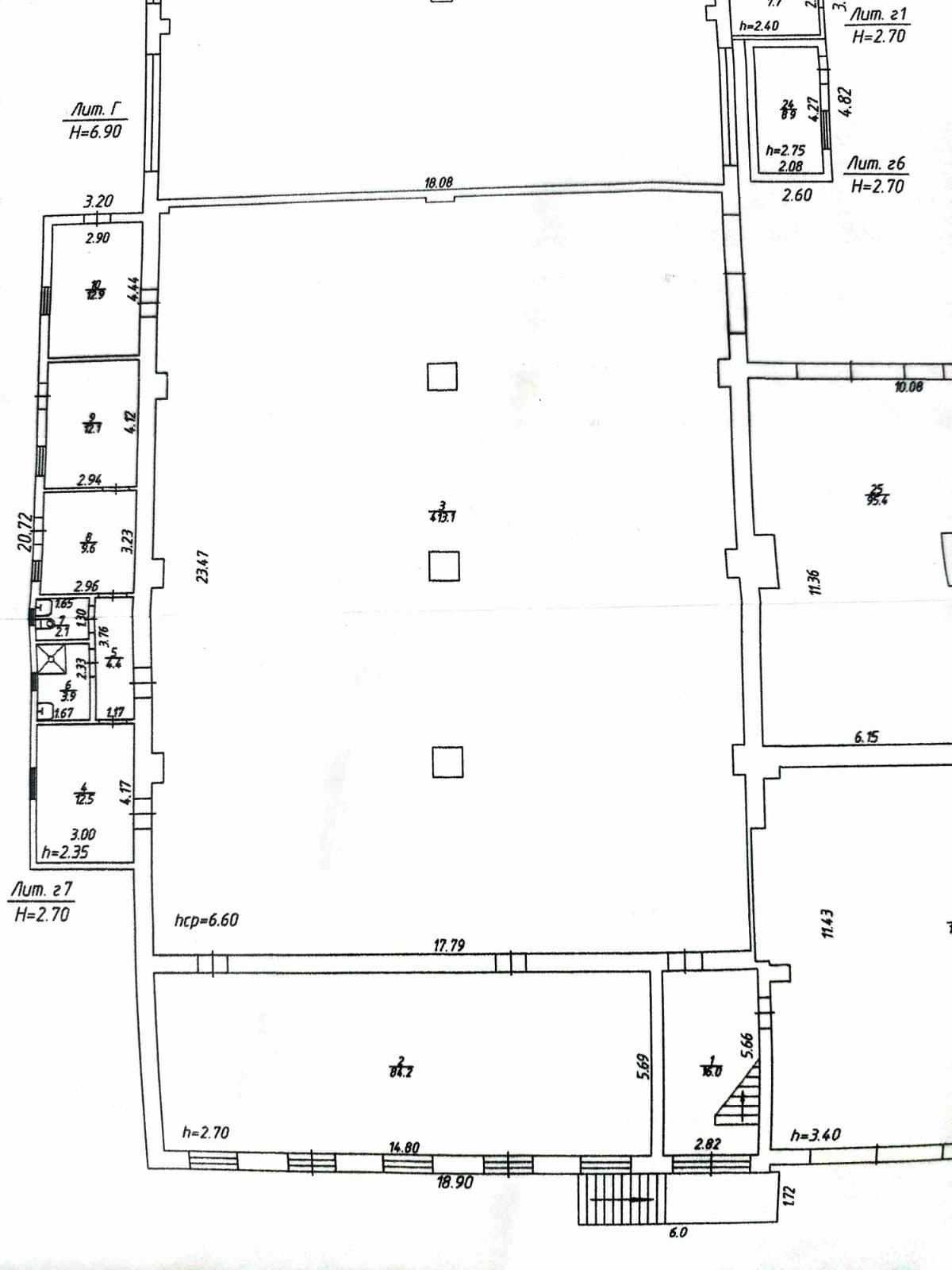
Площадь: 490 м².
Этаж / Этажность: 1 / 1.

Описание и характеристики

Предлагаем в аренду производственное помещение площадью 420 м², и офисные помещения (4-офиса, с\у и душ) площадью 70м². От собственника. Без комиссии.

-Помещение находиться на первом этаже, нового здания
-Своя парковка для транспортного средства, как для легкового также для крупногабаритного
-Высота потолков 8 метром, мощности по кВт высокие
-Заезд в помещение со двора, удобная транспортная развязка, территория  охраняется
-Имеются все коммуникации, отопления,  свой С\У
-Четыре офиса по 15м², свой с\У и душ
-Выход во внутренний дворик (для организации досуга сотрудников)
-Доступность 24\7

По всем вопросам обращаться к руководителю отдела продаж Екатерина. От собственника. Без комиссии.

Перейти в карточку объекта в CRM: 117189.

Екатерина Дерюшева

+7 989 127-03-40

или оставьте ваш номер, и я перезвоню в течение 30 минут

Отправляя заявку вы соглашаетесь на обработку персональных данных

185 000 руб.

?

$ 2 279

€ 1 967

378 руб./м²


490 м²

1/1 этажей

Код объекта

117189

Предложение доступно для субагентов, авторизуйтесь

Екатерина Дерюшева

+7 989 127-03-40

или оставьте ваш номер, и я перезвоню в течение 30 минут

Отправляя заявку вы соглашаетесь на обработку персональных данных

Похожие объявления

Посмотреть все похожие объявления
1/16
Код объекта: 251189.
Тип объекта: Производственное помещение.
Площадь: 800 м².
Этаж / Этажность: 1 / 2.
1/22
Код объекта: 379315.
Тип объекта: Производственное помещение.
Площадь: 700 м².
Этаж / Этажность: 1 / 1.
1/13
Код объекта: 263023.
Тип объекта: Производственное помещение.
Площадь: 350 м².
Этаж / Этажность: 1 / 2.
1/9
Код объекта: 20247.
Тип объекта: Торговое помещение.
Площадь: 110 м².
Этаж / Этажность: 1 / 1.
1/10
Код объекта: 206015.
Тип объекта: Торговое помещение.
Площадь: 185 м².
Этаж / Этажность: -1 / 5.
1/15
Код объекта: 209428.
Тип объекта: Отдельно стоящее здание.
Площадь: 200 м².
Этаж / Этажность: 1 / 1.
1/21
Код объекта: 209758.
Тип объекта: Помещение общественного питания.
Площадь: 271 м².
Этаж / Этажность: 1 / 1.
1/11
Код объекта: 212686.
Тип объекта: Помещение свободного назначения.
Площадь: 115 м².
Этаж / Этажность: -1 / 5.

Не хочу искать, перезвоните мне!

Оставьте номер телефона, наш специалист свяжется с вами и поможет с подбором недвижимости!